**Appartamento in Vendita a Castiglione Torinese**
€ 150.000
Torino
Dettagli
Contratto Vendita
Rif 1511
Prezzo € 150.000
Provincia Torino
Comune Castiglione Torinese
Indirizzo Strada Del Porto 3">
Vani 3
Camere 1
Bagni 1
Classe energetica
C (DL 192/2005)
EPI 175 kwh/m2 anno
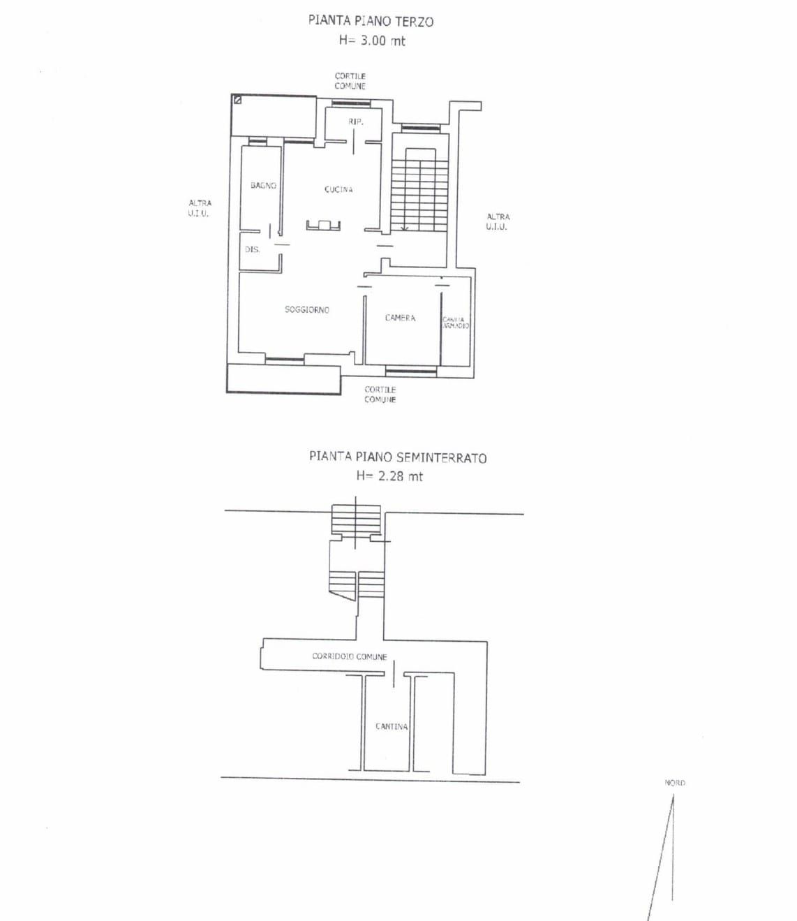
Piano 3 / 3
Riscaldamento autonomo
Condizioni ottime condizioni
Spese condominiali € 60
Anno di costruzione 1970
Cucina abitabile
Consistenze
| Descrizione | Superficie | Sup. comm. |
|---|---|---|
| Principali | ||
| Immobile - 3° piano | 75 Mq | 75 Mqc |
| Balcone - 3° piano | 15 Mq | 4 Mqc |
| Totale | 79 Mqc | |
Il Panorama Immobiliare propone in Vendita questo splendido appartamento situato al 3° ed ultimo piano di un elegante edificio a Castiglione Torinese. Recentemente ristrutturato, l'immobile offre una vista mozzafiato sulla collina, perfetta per chi ama la tranquillità e la bellezza della natura. Con una superficie commerciale di 90 m², ogni angolo è stato progettato per massimizzare la luminosità e lo spazio.
L'ingresso living si apre su un accogliente soggiorno, ideale per momenti di relax e convivialità. La cucina abitabile è perfetta per chi ama cucinare e intrattenere gli amici. La camera da letto principale è dotata di una comoda cabina armadio, mentre il bagno spazioso è un vero e proprio angolo di benessere. Non dimenticare la lavanderia, utile per semplificare le faccende quotidiane.
Goditi il sole sul balcone lato soggiorno o sul terrazzino adiacente alla cucina, spazi ideali per colazioni all'aperto o cene estive. Inclusi nel prezzo, ci sono un posto auto privato e una cantina, perfetti per soddisfare ogni tua esigenza di stoccaggio.
Con un'ottima classe energetica C e riscaldamento autonomo, questo appartamento è non solo bello, ma anche efficiente. Non perdere l'occasione di vivere in un luogo che unisce comfort e stile. Contattaci per maggiori informazioni e per prenotare una visita!
L'ingresso living si apre su un accogliente soggiorno, ideale per momenti di relax e convivialità. La cucina abitabile è perfetta per chi ama cucinare e intrattenere gli amici. La camera da letto principale è dotata di una comoda cabina armadio, mentre il bagno spazioso è un vero e proprio angolo di benessere. Non dimenticare la lavanderia, utile per semplificare le faccende quotidiane.
Goditi il sole sul balcone lato soggiorno o sul terrazzino adiacente alla cucina, spazi ideali per colazioni all'aperto o cene estive. Inclusi nel prezzo, ci sono un posto auto privato e una cantina, perfetti per soddisfare ogni tua esigenza di stoccaggio.
Con un'ottima classe energetica C e riscaldamento autonomo, questo appartamento è non solo bello, ma anche efficiente. Non perdere l'occasione di vivere in un luogo che unisce comfort e stile. Contattaci per maggiori informazioni e per prenotare una visita!
Video
Richiedi maggiori informazioni
Mappa
Zoom della mappa
Apri con:
Apple Maps
Google Maps
Waze
Contattaci
Il Panorama Immobiliare
Via Torino, 83 10090 CASTIGLIONE TORINESE (TO)
Via Torino, 83 10090 CASTIGLIONE TORINESE (TO)
C.F.: CNTMNL79S55L219N
P.IVA: 12626450014
+393925716100





